ALLPLAN 2026

DESIGN TO BUILD A BETTER TOMORROW 

Innovative AEC workflows, automation and cloud-based collaboration for more successful projects. 

 free trial

Features ALLPLAN 2026

The Version 2026 product releases from ALLPLAN continue to redefine productivity and collaboration for architects, engineers, fabricators and construction professionals. These latest releases focus on modernization, automation, and integration – delivering robust tools, seamless processes, and advanced interoperability to meet the evolving demands of the AEC industry.

ALLPLAN solutions enable end-to-end collaborative workflows across building and infrastructure modeling, design, detailing and fabrication, into construction. New developments streamline projects, boost accuracy, foster innovation and sustainability, and ensure team agility and responsiveness throughout entire project lifecycles.

KEY BENEFITS:​

  • Intelligent cloud-based collaboration throughout your complete project lifecycle​
  • Superior interoperability across disciplines and design to engineering workflows​
  • Elevated automation and accuracy with robust modeling processes​
  • Innovative and sustainable projects with lower environmental impact​
  • Scalability and flexibility ensuring team agility and responsiveness

 free trial

KEY FEATURES AND ENHANCEMENTS OF ALLPLAN 2026 

Included in: #Concept

Enhanced Freeform Stair Modeler

Create unique, compliant staircases with unmatched flexibility and ease

With growing demand for standout designs, architects and planners need flexible tools to create unique, functional stairs. Freeform stairs fit perfectly into unusual spaces, offering more creative possibilities for every project. ALLPLAN 2026 introduces a flexible stair modeler, making it easy to design custom and unconventional staircases—even in challenging spaces. Freeform Stair Modeler allows you to create unique or complex shapes in compliance with country specific standards. Additionally, you can now define reference planes at the stair’s top or bottom, making it faster to add walls or rooms under staircases. Enjoy unmatched versatility and efficiency—all inside a single, intuitive tool for designing standout, compliant staircases.

View video

Included in: #Concept

Advanced Multilayer Slab Management

Greater flexibility and precision for modern, sustainable building design

The AEC industry needs efficient ways to design and manage multilayered components for modern, sustainable buildings—while meeting project standards at every phase. ALLPLAN 2025 introduced ALLPLAN multilayer support for slabs and enhanced detailing and execution planning tools. With ALLPLAN 2026, designing multilayered slabs and foundation slabs is now more intuitive and efficient than ever. The latest updates let architects and engineers precisely control the direction of slab layer extension and instantly preview changes with a new interactive preview. Modeling even complex assemblies—like foundation slabs, terrain layers, or subbase layers—becomes simple and highly accurate. These enhancements mean faster project workflows, less errors, and consistent, detailed results from early planning through to sustainable, ready-to-build execution.

View video

Included in: #Concept

BIM-Compliant Room and Finish Detailing

More accurate, faster, and easier

ALLPLAN 2026 significantly improves BIM planning by offering a flexible, accurate, and efficient workflow for modeling of Finishes. Key features include multilayered vertical finishes with realistic geometry in combination with rule-based distribution, new room filter to organize associated room finishes or support alternative designs, floor plan display of vertical finishes like walls, 3D baseboard modeling, and an enhanced interface for layer management. These improvements help architects create precise 2D and 3D plans, simplify handling of finishes, reduce errors, and adapt to various project types for better results. In addition, optimized calculation process enables planners to save time when making design changes and updating complex projects.

 free trial

Included in: #Concept

Custom Component: Priority-Based Connections

Seamless interaction and automation for smarter, higher-quality BIM models

ALLPLAN 2026 introduces an improved Custom Component feature with priority-based connections (PBC) in the BIM model. This enhancement enables seamless interaction between custom-modeled elements and native building components—such as walls, columns, and slabs—as well as between custom objects. Planners can now model complex shapes more accurately, while automated interactions reduce manual effort and minimize errors. These improvements streamline workflows, deliver higher-quality BIM models, and support more successful project delivery on even the most demanding projects.

View video

Included in: #Professional

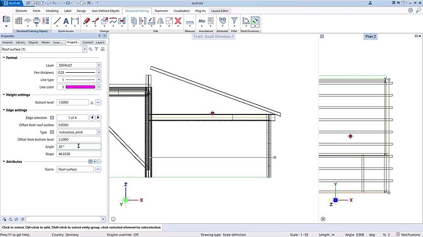
Improved Structural framing

Quickly model and update framing layouts

New tools for placing purlins and beam systems make it faster to model buildings and adapt framing layouts as roof geometry changes. Improved snapping options ensure steel elements are placed accurately the first time, reducing connection errors.

View video

Included in: #Professional

Structural Framing Assemblies

Maintain accurate connections, automatically

Stop wasting time correcting connection errors—speed up designs in ALLPLAN 2026 with new functionality to automatically apply and update connections, ensuring that steel assemblies remain correct and valid through design changes.

Included in: #Concept

Optimized Wall Workflows

Simplified wall design with a modern, unified interface

ALLPLAN 2026 introduces a modernized, unified property palette for wall creation and modification, including geometrical properties. This consistent and intuitive interface makes it easier for new users to get started, while experienced users benefit from improved efficiency and seamless workflows across different object types. The result is a streamlined wall design process that boosts productivity and user satisfaction for every project.

Included in: #Professional

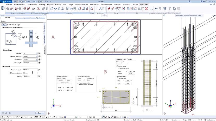
Enhanced rebar detailing

Automated Column reinforcement design

In rebar detailing, the ability to assign different bar diameters to specific column sides or to concentrate reinforcement at the corners of columns is key. With ALLPLAN 2026, users can now match design specifications more closely by assigning different diameters to longitudinal bars on square and rectangular columns and defining their axial spacing – whether concentrated at corners or set at user-defined intervals. This streamlines reinforcement design, enabling faster and more reliable work by greatly reducing the need for manual modifications after automated column reinforcement. Transferring reinforcement layouts from analysis and design software – such as FRILO – is now even smoother and more reliable, ensuring seamless, error-free workflows. The result: faster project delivery, fewer mistakes, and consistently high-quality structural detailing from analysis through to execution. 

View video

Included in: #Professional

Automated Reinforcement Detailing

Improvements to speed up Wall Reinforcement Workflows

Automating reinforcement detailing enables users to save time, accelerate workflows, and work with greater reliability. ALLPLAN 2026 further enhances the automated wall reinforcement workflow, providing a more streamlined and frustration-free automation experience as well as faster, more dependable detailing. Horizontal or vertical reinforcement priority can be set with a single click, and each reinforcement type can be toggled on or off as required. This makes automation practical and intuitive, allowing users to fully benefit from the speed, reliability, and confidence that ALLPLAN delivers. 

View video

Included in: #Professional

Reinforcement to Field

Empowering Digital-First Construction

ALLPLAN 2026 introduces a streamlined Reinforcement to Field workflow that transforms how reinforcement is modeled and managed in construction projects. This enables the creation of fully digital, drawing-less workflows for reinforced concrete structures. Detailers and contractors can now place reinforcement directly in isometric views, benefit from improved attribute management, and effectively handle reinforcement collisions—even in projects with a high density of rebars. Together, these innovations drive seamless information flow from detailing to site, minimize errors, and boost productivity, accelerating your transition to digital construction. 

View video

Included in: #Professional

A unique collaboration environment for Engineers – From Data to 3D Instantly

Visualize and manage the structural engineering process directly in BIMPLUS for faster, clearer structural analysis

Importing SAF files into BIMPLUS is becoming much easier. Users can import SAF files directly, instantly generating a 3D analytical model for visualization. Enhanced filter options allow the structural model to be viewed by materials, cross-sections, load types, or load cases, making analysis more intuitive. 

In addition, embedding the BIMPLUS viewer into the Excel-based SAF environment enables interactive navigation: selecting an object in the file highlights it in the model. This unique integration speeds up reviews, simplifies error detection, and offers powerful support for engineers working with SAF data. 

Included in: #Professional

FRILO

Effortless 3D Model Integration to FRILO

Now ALLPLAN users can seamlessly transfer their 3D models to FRILO’s BIM Connector, making it easier than ever to work across all FRILO modules. This streamlined process eliminates manual steps, speeds up data exchange, and ensures consistent, accurate information flows between design and analysis. Customers benefit from greater efficiency, improved coordination, and a smoother experience when moving structural models through their engineering workflows. 

Free Trial 

Included in: #Professional

Cloud-Based Steel Section Catalog

Always Up-to-Date, Always Accessible

Access a comprehensive cross section catalog for structural steel, now available in the cloud for instant use by teams and partners. With the latest profiles and specifications maintained in a single source, everyone benefits from accurate and current data. The intuitive user interface makes visualizing cross sectional properties easy, empowering faster engineering decisions and smoother collaboration across projects. 

Included in: #Ultimate

Unified DTM – Next-Generation Terrain Modeling

All‑in‑one engine for precise edits, advanced shaping, and large‑scale earthworks

The new Unified DTM replaces the legacy system with a modern, high-performance engine for precise, reliable, and detailed terrain workflows. Users can edit single points, manipulate breaklines, and derive terrain points directly from existing DTMs. Advanced shaping tools enable accurate creation of plateaus, slopes, ditches, and dams, while polyhedron-based visualization and solid generation between DTMs support consistent volume calculations and design validation. This unified approach eliminates redundancy, resolves conflicts, and ensures stability across projects, allowing engineers and architects to work seamlessly from local edits to large-scale earthworks.

View video

Included in: #Ultimate

Enhanced 3D Road Intersection Detailing

Precise vertical control and smoother transitions for accurate, low‑rework intersection design

The latest release expands parametric road intersection modeling with greater flexibility and precision in 3D detailing. Designers can now define vertical geometry of intersection edges using tangent polygon input, enabling smooth, complex transitions and independent vertical adjustment of left and right edge profiles. These enhancements deliver more accurate, realistic intersection models with reduced manual rework, supporting a continuous parametric workflow that unifies 3D design and 2D documentation for complex infrastructure projects.

Included in: #Ultimate

Tunnel Modeling – Parametric Precision

Tailored and efficient modeling solution

Three-dimensional modeling of tunnels is a cornerstone of any modern infrastructure project, given the complexity, scale, and risks associated with underground construction. A 3D tunnel model enables stakeholders and engineers to plan, visualize, and optimize every aspect of tunnel design—from alignment and cross-section to construction and maintenance. 

There are various types of tunnels, from cut-and-cover structures to bored tunnels, differing not only in construction methods but also in geometry. In particular, circular tunnels require a specialized design workflow. To address this, ALLPLAN now offers a new parametric modeling approach that streamlines the design-to-build workflow for tunnel projects. It effectively integrates 2D design rules at the cross-section level, tunnel alignment, and construction methodology. Especially in the cross-section definition, with new parametric lines and automated boundaries, users gain not only in performance but also in accuracy.

View video

Included in: #Civil

Building Structure for Infrastructure Projects

Centralized project management for faster, more accurate, and fully coordinated openBIM delivery

ALLPLAN’s Building Structure now extends beyond buildings to fully support infrastructure projects, organizing all models, drawings, and documentation in one intuitive structure. This centralized approach keeps your team aligned, ensures automatic updates across all drawings, reduces errors, and accelerates delivery. With seamless collaboration and always‑accurate information, you boost productivity, minimize risks, and deliver greater value to clients—laying a strong foundation for advanced openBIM workflows.

 free trial

Included in: #Ultimate

Model Transfer to BIMPLUS

Instant uploads for coordinated, cross‑discipline cloud workflows

ALLPLAN Civil now enables direct upload of 3D geometrical models to the ALLPLAN Cloud, allowing infrastructure teams to merge data from roads, railways, bridges, tunnels, terrain, and more into one coordinated environment. With Bimplus’s openBIM tools for review, issue management, revision control, and visualization, all stakeholders work from a single source of truth—streamlining communication, reducing errors, and accelerating every project phase. The integration supports smooth data exchange with Nemetschek solutions like Nevaris, boosting productivity and collaboration across projects of any scale.

View video

Included in: #Civil

3D Layer Management

Organize, control, and edit complex 3D models with supreme precision and efficiency

ALLPLAN Civil 2026 introduces advanced layer management for 3D models, giving infrastructure professionals excellent organization, visibility, and productivity. Users can now assign model elements—bridges, roads, tunnels, terrain, and more—to dedicated layers for clear separation of disciplines, phases, or systems. Layers can be shown, hidden, or isolated for focused editing, reducing errors and speeding up design. Global property adjustments ensure visual consistency, while multidisciplinary teams can work in parallel with fewer conflicts. This powerful capability sets a new standard for efficiency and accuracy in complex civil projects.

Included in: #Ultimate

Advancing Parametric Cross‑Section Modeling

Enhanced tools for faster, more accurate, and fully coordinated civil design

In ALLPLAN Civil, 2D parametric sections are the backbone of intelligent, parametric, data‑rich models, ensuring all outputs remain consistent and up to date. The latest release enhances flexibility and efficiency in creating and modifying complex civil components, with improved tools that automatically update the entire model when changes are made. These upgrades accelerate modeling, boost accuracy, and reduce repetitive work—streamlining the transition from design to construction.

Included in: #Civil

FEM – Volume Elements - Technical Preview

Expanded analysis with 3D volume elements for greater precision and flexibility

ALLPLAN Civil’s integrated structural analysis now goes beyond beam and grillage models with a new FEM solution using volume elements. This technical preview enables simulation of complex geometries, local effects, and detailed stress distributions allowing to consider the stiffness of substructure elements like abutments, piers and foundations within global models. By more accurate simulation of the interaction between superstructure and substructure, it delivers greater accuracy and modeling flexibility — paving the way for more advanced analysis in future releases.

View video

Included in: #Civil

Extension of Precast Girder Bridge Workflow

Enhanced safety, precision, and automation in parametric girder bridge design

ALLPLAN’s precast girder bridge solution delivers a highly automated, BIM-based workflow that combines parametric modeling, advanced structural analysis, and code-compliant detailing (EN, AASHTO LRFD 9) to streamline design-to-build by up to 70%. Leveraging parametric girder elements, modular 3D templates, and seamless BIM collaboration, engineers can rapidly define axes, cross-sections, and place components with flexible parameter-driven adjustments. The latest enhancements add lateral stability assessment of prestressed beams during storage and transport, improved automatic grillage generation for transverse reinforcement design, and robust code checking—ensuring greater safety, accuracy, and efficiency in modern precast girder bridge projects.

Included in: #Ultimate

Groundwork Improvements

Smarter Management for Complex Construction Models

Managing complex construction models is essential at every project stage, from planning to delivery. Key elements like excavation pit models and retaining walls are critical for accuracy and reliable results. As projects grow, manual workflows can slow progress and increase the risk of errors. 

ALLPLAN 2026 introduces significant improvements to these core processes. Enhanced operator management allows teams to efficiently activate or deactivate excavation pit operators, visualize operator volumes in the palette, and stay in control throughout modeling. The improved sheet pile wall workflow streamlines corner definition, giving users greater precision with complex geometries. Additionally, performance upgrades to retaining wall previews make modeling faster and more intuitive. 

These enhancements simplify complex construction model management, reduce errors, and speed up project delivery – helping your team achieve superior results even on demanding projects. 

View video

Included in: #Professional

Rule-based Dimensioning

Apply rule-based dimensions for faster drawing production

Bored of wasting hours manually dimensioning each view? ALLPLAN 2026 now automates dimensions based on production standards – so every precast element gets exactly the dimensions needed, instantly and consistently. Rule-based dimensioning empowers users to create custom dimensions in specific views or sections to suit their production needs. Planners can also define rules for any 3D object with macro data in any view or section. This flexibility enables users to optimize workflows and ensure dimensioning meets the exact needs of their manufacturing process.

View video

Included in: #Professional

Automated Dimensioning for Local Views

Maintain perfect clarity and stability for local views

Accurate representation, consistency despite modifications, and automatic and user-controlled referencing capabilities are essential for ensuring clarity and precision in documentation and visualization. These functionalities reduce errors while maintaining flexibility and control. Local views in ALLPLAN stay anchored to your elements – even as your model changes – so your shop drawings stay accurate, aligned, and crystal clear, no matter how many edits or splits you're working with. 

View video

Included in: #Professional

New Connection Palette Update

A streamlined, production-ready tool for faster, more precise precast workflows

The updated connection palette in ALLPLAN 2026 streamlines precast production by fully integrating with ALLPLAN´S property framework, delivering faster performance and consistent user experience across all precast components. Its decoupling from wall elements eliminates unnecessary navigation, making connection settings easier to access and modify.

Now a standalone tool, the connection palette allows users to efficiently create, modify, and align joints between different types of walls, such as double and solid walls. Direct object modification lets users adjust connections right within the model, enabling quicker and more precise changes with immediate visual feedback. The system also supports automated wall height adjustments and seamlessly incorporates production details like formwork release and connection loops, optimizing the process for manufacturing needs.

Book personal demo free trial

Included in: #Precast

Common solution for filigree slabs

Automate production-optimized slab designs

ALLPLAN now places and updates fixtures in filigree slabs automatically – so you don’t have to redo layout work every time your design changes. Production planning just got a whole lot faster and easier.

Included in: #Precast

Reinforcement in Hidden

Deliver crystal-clear rebar plans

ALLPLAN 2026 introduces an automated functionality that allows planners to completely deactivate hidden reinforcement categories during plan creation.

Now engineers and architects can clearly distinguish between exposed and embedded reinforcement in drawings, making it easier for crews to understand, inspectors to approve, and your team to avoid costly field fixes. This innovation effectively separates protruding rebar from embedded reinforcement in structural elements, enabling clearer visualization.

Included in: #Precast

Customizable Quantity Take-off

Deliver accurate material takeoffs, instantly

Export BOMs with exactly the data you need, in the format your ERP or client requires. Customize your rules once and get consistent, reliable quantities on every project – no more double entry or workarounds.

View video

Included in: #Professional

Mark Numbering

Instantly assign, validate, and batch mark numbers

Quickly identify which elements match in geometry, reinforcement, or fixtures with one unified system. This precision helps you batch efficiently, reduce formwork waste, and streamline your entire precast production schedule.

View video


And more: New features for...

Information Modeling, Management, Interoperability & Collaboration Workflows

View features

ALLPLAN Cloud & General Enhancements for All
 

View features

Further Improvements

Designers need an authoring tool that enables efficient and accurate quantity takeoff and seamless integration with their preferred solutions. ALLPLAN's Smart Catalog Editor provides a user-friendly, integrated, and globally applicable platform for managing material and information databases. ALLPLAN 2026 improves upon the Smart Catalog's user-friendliness and usability, making it easier to find and select the right materials. New features like iterative search and expandable or collapsible catalog sections significantly increase efficiency when navigating material databases. 

Accurate modeling for every shape and unit: ALLPLAN 2026 brings enhanced precision to reinforcement detailing for complex circular and spiral structures. With updated circular reinforcement capabilities, all parameter values—including radius and bar diameter—are saved and maintained with exact accuracy. This is especially impactful when working with imperial units, as it ensures even fractional inch dimensions remain fully editable and consistent through every modification. The result: more dependable detailing and confidence from design to fabrication. 

Teamwork just got smoother in ALLPLAN. With AUTOMATIC REINFORCEMENT UPDATES, changes to 3D objects instantly adjust linked reinforcement – no switching models or manual updates needed. Enjoy faster, error-free coordination and seamless workflows – all in ALLPLAN.

ALLPLAN 2026 is faster across the board – speeding up everything from model loading to drawing updates. That means less time waiting and more time detailing, coordinating, and getting drawings out the door.

Provision for Void – wall openings in ALLPLAN 2026 deliver significant performance improvements, enabling designers to efficiently and automatically create voids even in the most complex projects. These enhancements streamline design processes and support smoother, more productive BIM modeling.

Ceiling System Improvements in ALLPLAN 2026 make ceiling plans clearer and more efficient. Assign different 2D faces to each ceiling element for easy distinction and enjoy clearer section views with dedicated format settings. Ceiling System can now adapt its shape when room outlines are changed, by using the update button – streamlining workflows and reducing errors.

ALLPLAN 2026 advances openBIM collaboration with significant IFC4 import enhancements. Expanded support for multilayer slabs and updated compliance with IFC4 standards ensure higher quality, more reliable imported data. These improvements strengthen interoperability with other BIM platforms, giving AEC teams greater confidence and flexibility when working in mixed-software environments. The result is smoother data exchange, more accurate models, and strengthened ALLPLAN leadership in openBIM workflows.

ALLPLAN 2026 features an improved context menu, making essential tools easier to access and use. This streamlined interface helps users quickly find commands, reduces learning time for new users, and boosts overall productivity for every project.

ALLPLAN 2026’s Content Connector now enables seamless integration of new providers by third parties using the innovative ALLEP package. Plus, for 3D Warehouse workflow, there’s no need to keep an SKP source file – once a PythonPart object is generated, content is added directly. These upgrades simplify the extension of your content library, increase flexibility for partners, and accelerate project workflows for all users.

ALLPLAN 2026 unveils a completely redesigned PythonPart palette with significantly improved performance and a host of new features. Enjoy greater flexibility with nested expanders for better organization, image resizing for clearer visualization, and full dark mode support for a modern, comfortable user experience. These enhancements make it faster and easier to manage PythonParts, boosting productivity and delivering a more intuitive workflow for every project.

Foundations for Advanced Road and Rail Modeling: The new release adds circular axis geometry and parallel horizontal axes, unlocking expanded possibilities for parametric infrastructure design. Users can now create closed alignments for true parametric roundabout modeling and generate parallel axes at userdefined offsets, composed of straights, arcs, clothoids, and bloss elements for full geometric consistency. All settings are managed in the Axis Manager, enabling efficient creation and control of axes. This unified parametric workflow lays the groundwork for advanced multi-axis road, rail, and roundabout design.

Parametric placement and auto‑updates for faster, more accurate, and consistent design: Parametric object placement in ALLPLAN enables dynamic, intuitive adjustments to project elements directly in the model. PythonParts created via Visual Scripting can be inserted and managed without manual coding, with all objects updating automatically as parameters change. This approach combines flexibility with standardization, supports sophisticated templates, and reduces repetitive tasks—boosting accuracy, consistency, and productivity across projects of any scale.

Seamless integration of national standards for faster, fully compliant bridge design: The latest update to ALLPLAN Bridge’s code-based design module integrates the most recent Dutch and Belgian national annexes, embedding all country-specific limit states, values, calculation methods, and verification procedures directly into the workflow. By automating compliance checks and referencing annex provisions in calculation reports, the solution eliminates manual interpretation, reduces risk, and speeds validation — ultimately accelerating time-to-market and improving profitability through more efficient, compliant, and scalable workflows. 

Full IRC standard support for accurate, compliant bridge design in India and beyond: ALLPLAN Civil’s integrated structural analysis supports precise, code‑compliant global bridge analysis, accounting for time‑dependent effects like creep, shrinkage, and prestress relaxation. The latest update adds full support for Indian Roads Congress (IRC) standards, enabling engineers to model complex geometries and staged construction scenarios in complete compliance with IRC requirements. With this enhancement, ALLPLAN now supports a broader range of international projects, enabling engineers to execute code-compliant analysis with confidence and consistency across diverse regulatory environments.

Bring your drawings together in a single shared environment designed for effortless collaboration. Enhanced documentation workflows let users push 2D drawings from ALLPLAN directly into one centralized project space, keeping everyone on the same page and streamlining coordination. Teams benefit from faster decision-making, fewer errors, and higher productivity – making project delivery smoother and more efficient than ever before. 

Import IFC 4.3 and SketchUp 2024, plus export to GLB for smoother data workflows. BIMPLUS now offers expanded interoperability with new interface support. Users can import IFC 4.3 files and SketchUp 2024 models, ensuring compatibility with the latest industry standards. In addition, export capabilities have been extended to the GLB format in both the BIM Portal and BIM Explorer, enabling smoother data exchange and visualization across platforms.

ALLPLAN

DESIGN TO BUILD A BETTER TOMORROW
More productive, collaborative and advanced workflows

Try ALLPLAN for free

  • Interdisciplinary AEC teamwork on a single platform
  • Superior coordination of materials and construction methods
  • Advanced BIM workflows and real-time collaboration

Test the full version of ALLPLAN for 14 days free of charge and with no obligation. Simply download the software and experience all the advantages for yourself.

Download Now