ALLPLAN 2026

DESIGN TO BUILD A BETTER TOMORROW 

New features in ALLPLAN 2026 for Information Modeling, Management, Interoperability & Collaboration Workflows

 free trial

Information Modeling & Management

Included in: #Basic

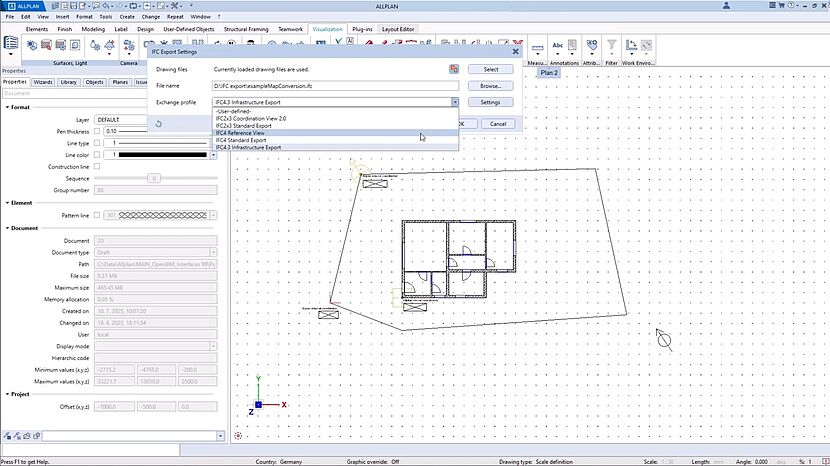
Georeferencing support

Precise Georeferencing with Georeference Points

Accurate georeferencing in BIM is crucial for correct project placement, true north alignment, and precise location data. ALLPLAN 2026 offers new setting georeferencing options—such as Survey Point (for earth-referenced coordinates), Base Point (for local origin and project offset) to ensure seamless collaboration with formats like IFC and prevents model rotation issues during data exchange. These points are visually represented for easy placement and adjustment. With true north defined as a separate setting, ALLPLAN´s georeferencing tools enable users to position projects accurately in real-world coordinates, enhance cross-discipline collaboration, and ensure proper alignment of all BIM components.

View video

Included in: #Concept

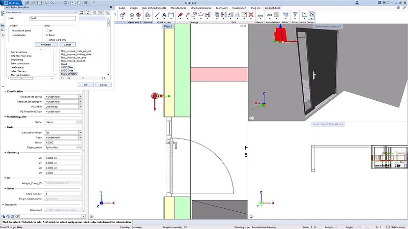
Import buildingSMART Data Dictionary (bSDD) in ALLPLAN

Seamless BIM integration with standardized data

ALLPLAN 2026 simplifies BIM workflows with integrated bSDD access to over 300 expert dictionaries, including sustainability standards and country-specific regulations from buildingSMART. Quickly import and apply specialist attribute sets to your objects, enabling faster project starts, better decision-making, and seamless openBIM data exchange—without manual setup. Build smarter with audit-ready documentation and high data quality. 

View video

Included in: #Professional

IDS-Based Attribute Import

Automated BIM compliance and streamlined data integration with IDS rules

In BIM planning processes, it is essential to integrate information easily and in the right way. IDS (Information Delivery Specification) by buildingSMART is a standardized format used to clearly define and automate information requirements for BIM projects, ensuring that BIM models include all necessary data for compliance.

ALLPLAN 2026 now offers additional and extended support of IDS files—automatically checking and adapting model attributes to meet BIM requirements. That means less time correcting data and more time designing, coordinating, and delivering compliant models.

View video

Included in: #Concept

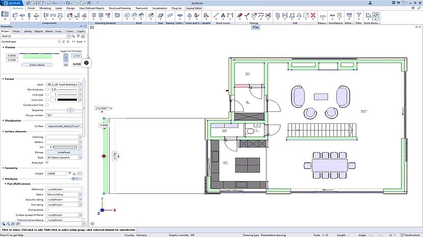
Enhanced Information Palette

Effortless organization and control for smarter, faster project management

ALLPLAN 2026 introduces a completely upgraded Information Palette. This new version introduces advanced features—including flexible grouping, automatic totals, IDS validation, catalog integration, improved navigation, enhanced sorting and filtering, and a redesigned UI for more intuitive user experience and significant performance optimizations for smoother workflows. These powerful tools let users quickly organize, find, and update information, reducing time spent searching and boosting productivity. The result: greater planning reliability, faster project delivery, and more time for creative work.


Interoperability & Collaboration Workflows

Included in: #Concept

Enhanced XRef Manager with Advanced IFC and Cloud Referencing

Greater flexibility, cloud integration, and streamlined collaboration

ALLPLAN 2026 introduces a significantly improved XRef Manager, delivering a more intuitive and efficient workflow for handling external references, especially IFC files. The new manager features integrated 3D previews for referenced IFC files directly within the interface, along with visual icons that indicate whether an XRef is stored in ALLPLAN project folders or in an external location. This helps teams quickly locate and verify resources, which is particularly valuable when working with backup projects containing XRefs. Advanced file management tools such as replace, filter, and file selection provide greater control and efficiency in managing references. 

A major innovation is the introduction of the Cloud Reference, a new IFC XRef type that allows direct insertion of IFC files from BIMPLUS, ALLPLAN`S cloud-based collaboration platform. This approach eliminates the need to download files locally, reducing storage requirements and ensuring that teams always work with the latest project data. When IFC source files are stored in the cloud, authorized users can preview them directly in ALLPLAN, take full advantage of IFC XRef capabilities in model space, and access all related information management tools in the XRef Manager. This seamless integration also enhances information sharing within the Common Data Environment. 

Further improvements include the automatic preservation of relative file paths, avoiding saving issues and ensuring consistent reference links across different systems. External XRefs can be exported and imported along with their resources, while those stored within project folders can be packaged as .ZIP or .APN files for easy transfer. Together, these enhancements provide architecture and engineering teams with a clear, unified overview of all project references, simplify data management, and strengthen collaboration across both local and cloud-based environments, enabling faster and more reliable project delivery. 

View video

Included in: #Concept

Geopackage DataExchange

Effortless, standards-compliant GIS data integration for urban planning

Geospatial data is essential for architects, engineers, and urban planners, enabling more informed decision-making. ALLPLAN offers specialized modules for urban planning and landscaping, with XPlan support currently applicable only to Germany. Now, with GeoPackage integration, ALLPLAN 2026 enables GIS data use across all EU countries and beyond. GeoPackage enables straightforward import and export of geospatial data – including geometry, attributes, and .xls files – adapting flexibly to national standards, giving architects, planners, and authorities quick access to accurate site context for better decisions on zoning, infrastructure, and environmental impact.

View video

Included in: #Basic

Integration with Preoptima

Early-stage carbon assessment for smarter, sustainable design decisions.

To achieve sustainable designs, architects and engineers must assess carbon impacts early in the design process. ALLPLAN 2026 supports early-stage sustainability by offering a seamless workflow with Preoptima CONCEPT. Users can export conceptual mass models from ALLPLAN to Preoptima CONCEPT for early carbon assessment and validation – without needing a detailed BIM model. 

Preoptima CONCEPT enables not only embodied carbon calculations, but also assesses operational carbon, whole life cycle carbon (WLC), and supports optioneering – allowing users to compare different design variants for carbon optimization. This empowers designers to understand the full spectrum of a project’s environmental impact right from the earliest phases. 

By leveraging Preoptima’s multiple rule sets, users benefit from automated geometry checks and compliance support within ALLPLAN, while retaining design flexibility. This workflow allows architects to make informed, holistic decisions, balancing economic and environmental considerations from the start, and reducing the risk of costly changes later. 

With these integrated capabilities, ALLPLAN 2026 and Preoptima CONCEPT ensure that project teams make the best sustainable choices – delivering smarter, greener buildings from day one. 

View video

Book personal demo View all ALLPLAN 2026 features


ALLPLAN

DESIGN TO BUILD A BETTER TOMORROW
More productive, collaborative and advanced workflows

Try ALLPLAN for free

  • Interdisciplinary AEC teamwork on a single platform
  • Superior coordination of materials and construction methods
  • Advanced BIM workflows and real-time collaboration

Test the full version of ALLPLAN for 14 days free of charge and with no obligation. Simply download the software and experience all the advantages for yourself.

Download Now