ALLPLAN 2026

DESIGN TO BUILD A BETTER TOMORROW 

New features with ALLPLAN 2026 for ALLPLAN Cloud
& General Enhancements for all

 free trial

General Key Features and
Enhancements for All 

Included in: #Concept

Multi-letter keyboard shortcuts support

Faster commands and smarter workflows—right at your fingertips

ALLPLAN 2026 introduces a highly flexible, customizable shortcut system that matches or exceeds industry standards empowers users to create shortcutdriven, ultraefficient workflows tailored to their needs. With these improvements, users can access any tool or command in a split second, delivering a dramatic boost in daily productivity.

View video

Included in: #Professional

New Graphic Override

Effortlessly apply visual rules for faster, more creative BIM workflows

The new Graphic Override feature in ALLPLAN 2026 allows planners to instantly control the appearance of drawings and models. Rules for colors, fills, line types, patterns, and other features can be easily defined in the Graphic Override Manager without editing individual element attributes. Graphic override sets can be instantly applied in construction or layout mode to quickly visualize, check, and communicate your design. This flexible, rule-based approach streamlines plan production, saves time, and enables more efficient and creative BIM workflows.

Included in: #Basic

Introducing Dark Mode

Effortless comfort and clarity—whatever the lighting

With rising expectations for a modern, comfortable workspace, users need flexible interface options to stay productive—day or night. ALLPLAN 2026 introduces a brand-new dark mode and a refreshed light mode, enhancing comfort and productivity, especially during intense or prolonged modeling sessions. 

Users can switch seamlessly between dark or light mode to reduce eye strain, boost accessibility, and even save battery on OLED screens, ensuring a customizable, future-ready ALLPLAN experience—all in one intuitive interface. 

View video

Included in: #Concept

Enhanced Clash Management

Effortless conflict detection and streamlined resolution for better project coordination

ALLPLAN 2026 streamlines the process of identifying and resolving conflicts between different elements within the 3D model. Thanks to enhanced Clash Management, ALLPLAN now offers informative clash macros packed with attributes, advanced clash filters, and the ability to update existing clashes. Teams can finally take control of coordination. These enhancements include simplified checks for hard and soft clashes, including gaps, using targeted filters. It's also now possible to instantly transfer clash macros to the information palette for seamless issue management. The result is fewer costly reworks, higher-quality buildings, and longer-lasting structures, all with smoother construction processes in ALLPLAN.

View video

Included in: #Concept

Enhanced Properties Palette

Streamlined property management for a faster, more focused design experience

As projects become more complex, designers need clear and efficient tools to view and modify the properties of selected elements within a project. To enhance the user experience of this essential workspace component – the property palette – ALLPLAN 2026 introduces the new Property Palette Framework, delivering a unified and streamlined experience for every project. This innovation streamlines workflows, helping users maintain focus and efficiency when managing complex design data. 

Included in: #Professional

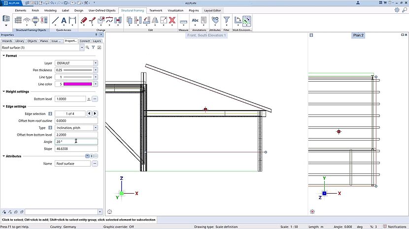
Improved Structural framing

Quickly model and update framing layouts

New tools for placing purlins and beam systems make it faster to model pre-engineered buildings and adapt framing layouts as roof geometry changes. Improved snapping options ensure steel elements are placed accurately the first time, reducing connection errors.

Included in: #Professional

Structural Framing Assemblies

Maintain accurate connections, automatically

Stop wasting time correcting connection errors – speed up designs in ALLPLAN 2026 with new functionality to automatically apply and update connections, ensuring that steel assemblies remain correct and valid through design changes.


ALLPLAN Cloud

Included in: #Concept

AI Assistant

Your Expert Companion for AEC Innovation

The AI Assistant, available through the Connect platform, is a groundbreaking tool designed to transform the way you work with ALLPLAN software solutions (ALLPLAN, SCIA, FRILO, SDS2 and BIMPLUS). With expertise spanning architecture, engineering, fabrication, and collaboration, this intelligent assistant provides comprehensive support across all areas of the platform. Beyond its deep knowledge of ALLPLAN-specific topics, it also serves as a valuable resource for broader AEC industry standards and best practices, helping you streamline processes and make informed decisions.

Whether you need guidance on construction standards, smart suggestions for room scheduling, or help developing detailed coding extensions for your projects, the AI Assistant is equipped to deliver practical solutions. Accessible around the clock and available in multiple languages, it ensures you have expert support whenever you need it. 

The AI Assistant will be available as a preview version for subscription customers. It’s more than just a tool – it’s your trusted partner in boosting efficiency and unlocking new possibilities in your AEC workflows.

Included in: #Concept

Overlays - 2D Document Clipping

Easily focus on important details in 2D layouts for clearer, faster coordination in 3D

The new clipping box for overlays in ALLPLAN lets users isolate exactly the 2D content they need when combining 2D layouts with 3D models. By defining and adjusting a visible area directly within the workflow in the 2D layout, irrelevant views, headers, or extra information can be excluded, ensuring only the essential details are displayed. With intuitive sizing and Undo/Redo functionality, the clipping box streamlines reviews, reduces visual clutter, and enhances clarity – making coordination faster, communication clearer, and presentations more effective for architects and engineers.

View video

 

ALLPLAN Model Viewer – Free, Fast, and Accessible Anywhere

Instant Model visualization in your browser

The free, standalone Model Viewer brings instant, browser-based IFC visualization to anyone. Accessible at modelviewer.allplan.com, it enables fast model preview and interaction.

Included in: #SCIA Engineer

Collaborate Smarter - Streamlined Model Management and Teamwork for SCIA Engineers

A smarter way for engineering teams to coordinate designs and share progress

With the latest enhancements to SCIA Engineer, teams can now collaborate around a single shared structural model. Engineers can track changes, coordinate more efficiently across disciplines, and ensure everyone is working with the most up-to-date design data. This connected workflow reduces errors, accelerates project delivery, and helps teams focus on delivering better outcomes for their clients. 

Learn more about SCIA 

Included in: #Concept

Extension ALLPLAN-Bluebeam connection

Stable workflow for digital transfer of 2D and 3D documents

Both Bluebeam and ALLPLAN offer collaborative tools to their customers. The ALLPLAN 2026 release introduces a robust workflow between the two tools, allowing users to easily bring documents from the Bluebeam Studio Project environment into their ALLPLAN workflows. This provides users with a digital delivery environment for handover at different project stages to synchronize 3D and 2D data and exchange it with project stakeholders. *Now available for Bluebeam EU Server 


ALLPLAN

DESIGN TO BUILD A BETTER TOMORROW
More productive, collaborative and advanced workflows

Try ALLPLAN for free

  • Interdisciplinary AEC teamwork on a single platform
  • Superior coordination of materials and construction methods
  • Advanced BIM workflows and real-time collaboration

Test the full version of ALLPLAN for 14 days free of charge and with no obligation. Simply download the software and experience all the advantages for yourself.

Download Now